大富不動産株式会社 大富不動産株式会社

物件一覧 淀屋橋辻梅ビル
淀屋橋辻梅ビル

淀屋橋辻梅ビル

11億円
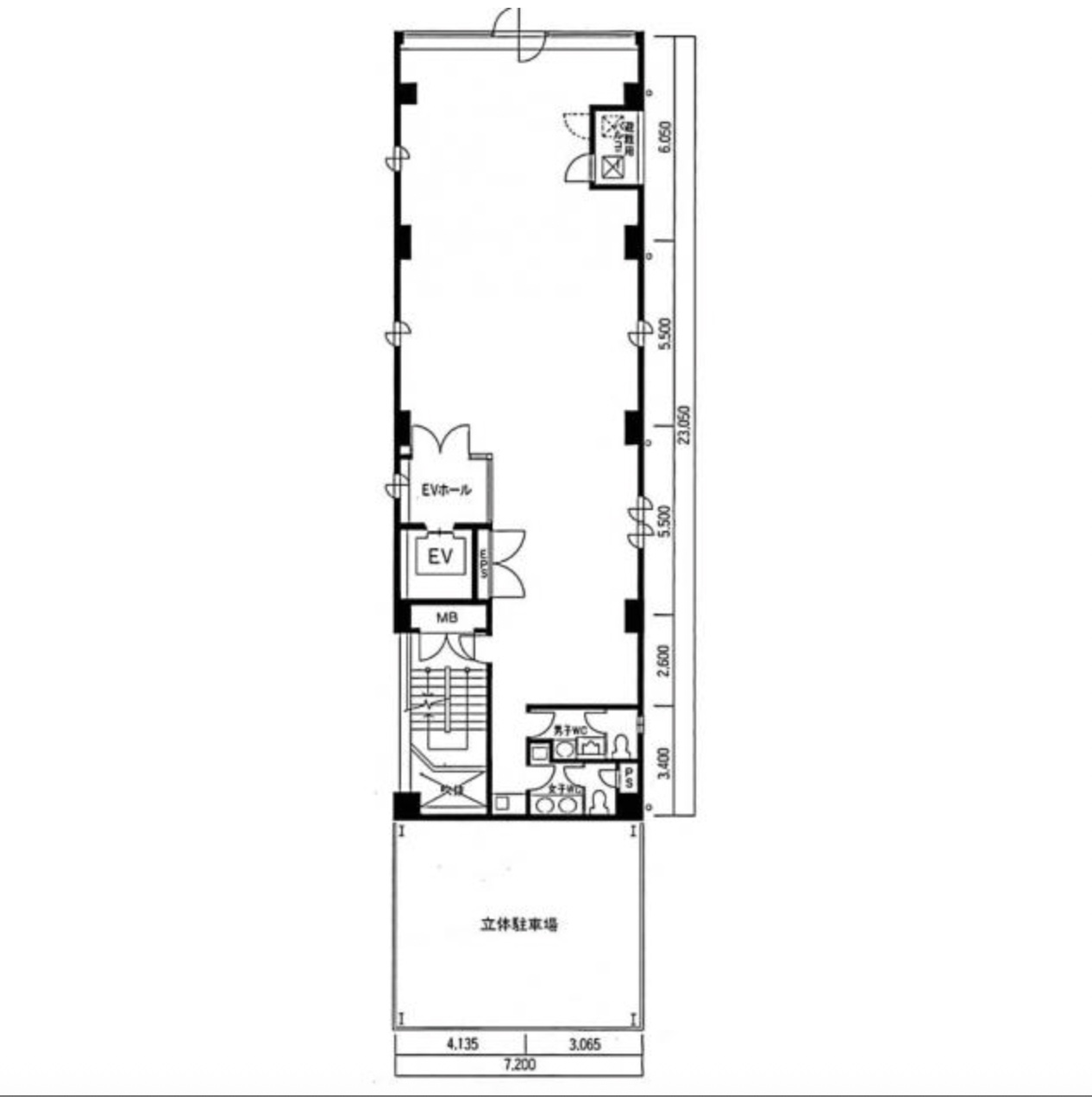
間取り
1フロア
建物面積
地 積:249.91 ㎡( 約 75.59 坪 )
所在地
大阪府大阪市中央区平野町3丁目3番8号
最寄駅
大阪メトロ 淀屋橋駅
徒歩3分
築年数

物件の特徴

大阪メトロ御堂筋線「淀屋橋駅」徒歩3分の好立地ビル。本町駅からも徒歩5分の立地です。
カーテンウォールの美築ビル。室内に男女別トイレを配し、水回りは独占して使えます。
ワンフロアワンテナントの使い勝手がいいオフィスです。
立体駐車場が地下にあり、地下スロープには駐輪場がありますので、効率良く動くことが可能です。

設備・特徴

個別空調
セキュリティシステム
24時間使用可能
光ファイバー
新耐震基準
1フロア
駐車場有
エレベーター

物件概要

所在地
大阪府大阪市中央区平野町3丁目3番8号
交通
大阪メトロ 淀屋橋駅 徒歩3分
間取り
1フロア
建物面積
地 積:249.91 ㎡( 約 75.59 坪 )
建物構造
鉄筋コンクリート造地上9階地下2階建塔屋階
築年月
1993年09月
現況
満室
引渡し
相談
駐車場
備考
※ 現状有姿 / 公簿取引
※ 1階ギャラリーは定借契約にて退去予定
※ 価格は約11億(商談申込にて書面差入れ必要)
※ 詳細資料:CAが必要です。

この物件についてお問い合わせ

お電話でのお問い合わせ
06-4256-1838
受付時間:平日 10:00~18:00
© 2025 大富不動産株式会社
Loading